Solitude+

PROJECT OVERVIEW

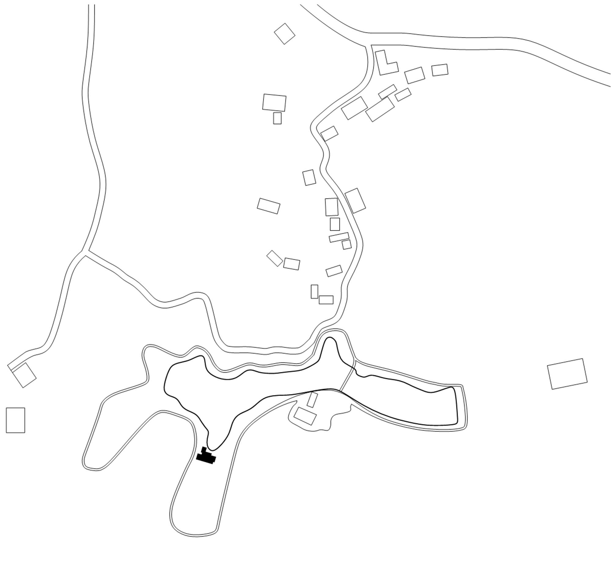
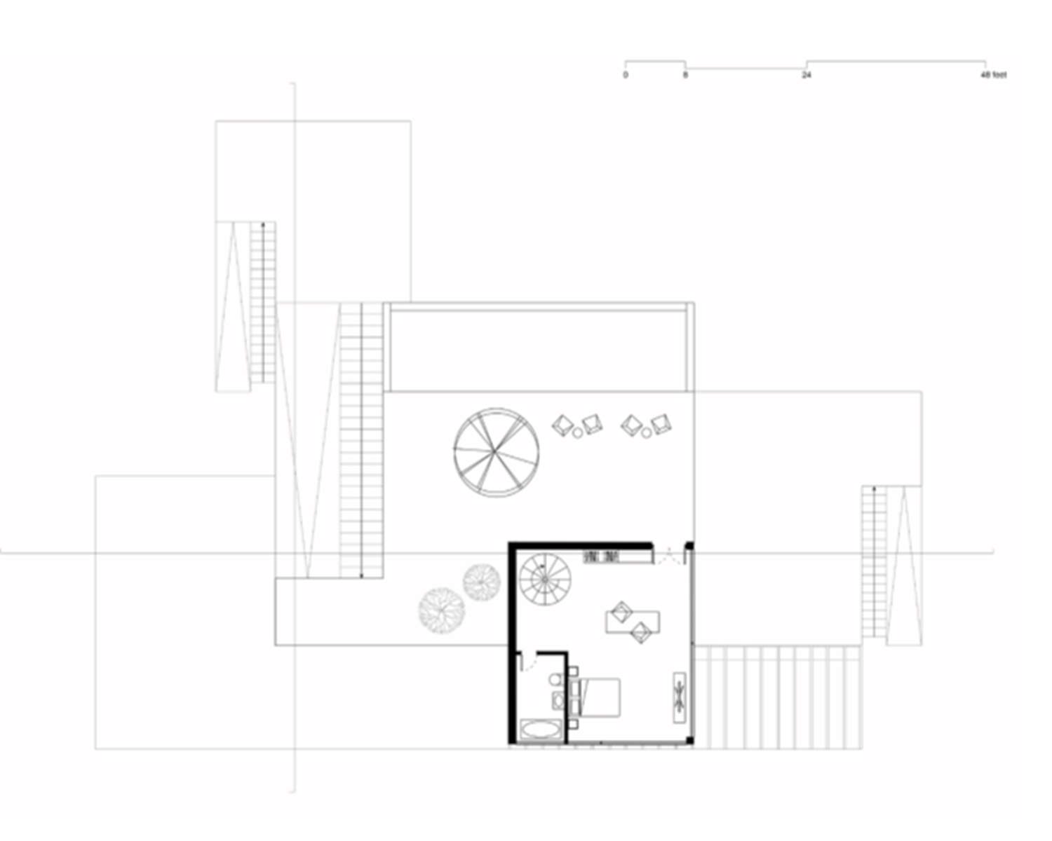
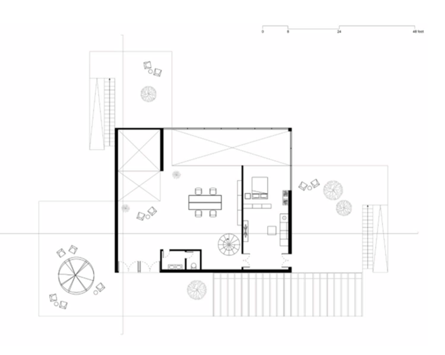
Positioned gracefully along the tranquil shores of a lake, cradled by mountainous terrain and yet in proximity to the city’s pulse, the design harmoniously fuses the peaceful allure of nature with the vibrant essence of communal living. Our vision extends beyond mere physical design; it is about cultivating an experience that resonates with the spirit of friendship and the desire for escape. The project is not just a building but a living, breathing space that evolves with the moods and moments of its inhabitants. It seeks to be a harmonious blend of retreat and social hub, accommodating moments of quiet reflection as well as joyous communal celebrations. In essence, this architectural venture is a testament to the seamless integration of nature, privacy, and social connectivity, embodying a holistic approach to living spaces that enrich the human experience.

SPECS

Location

Chongqing, China

Date

2020

Status of the project

Concept

Tools used

Photoshop, Rhino, Enscape, Illustrator

Design Team

Haochen He, Lizhemei Wang, Yidong He